書生把書放在陽光下長長地嗅著幸福的氣味
——萩原朔太郎

本案業主是對知識分子夫婦,先生著作等身,是國內某一領域的知名學者,但兩人均是以在大學教書為主業。
家里還有一個上小學的兒子和女方的媽媽。雖然從人數上看并不多,但算得上一個基本的三代同堂配置。
業主夫婦的工作特性,給這個設計帶來了兩個切入點:
一是閱讀和藏書空間,先生有著較大的藏書量,需要有專業藏書區域,除此以外家里的其他區域最好也有可以隨時放書的地方;
二是生活作息,大學老師相對于朝九晚五的工作,時間上較自由。先生更是因寫作需要,經常半夜工作而起床較晚。
在通常狀況下三代人因工作讀書外出而產生的緩沖,在這個家庭卻并不存在。
01
生活俗常



客廳空間是大面積可用來擺放書籍的柜體,結構簡約而富有層次感;
純粹的木色材質搭配潔白的絨布弧形沙發,使得空間素樸卻豐滿,簡單又舒適。
整面的落地窗為全屋帶來了良好的采光,隔著紗簾,時間在飄渺間流逝,生活的印刻在光影間加深。
設計師也借此開啟空間之內桃源感知與市井氣質的相合挑戰,
進一步引領著我們走入這一方獨屬于屋主的自在天地。



設計初始,業主清晰地提出了他們希望少用石材多用木頭的訴求,
于是選用了LEDINI胡桃木鋸齒紋為全屋主要材料,相較于傳統板材,
LEDINI的鋸齒紋肌理更為清晰,有著強烈的手工感,其色調內斂,質感敦厚,呈現出低調儒雅的氣質。
整個空間沒有過度強調色彩的華麗,而是以其簡約實用的功能體驗和精雕細琢的工藝設計,
體現著與家人相處時的閑適與愜意。

素雅的空間中,居于正中位置的大床覆蓋著柔軟的床品,造型簡單的懸空床頭柜,別致的氛圍燈,
彼此反差又意外一致,在安靜的空間中蕩起生活中的一處漣漪。
光線斜入此間,由暗到亮,由光至影,空間氤氳且拙樸,可以想象入眠時的柔軟與深沉的睡眠。

在窗前留有一桌、一椅、一書,日有陽光相伴,夜有燈光可親,
居住者在此感知更多的空間余韻與生活體悟。


生活布局基本可以解決老人的生活需求,舒適無憂的生活空間,
設計師特別注重材料選擇、紋理組合、顏色搭配與空間氛圍的營造。


簡約又富有細節,設計師采用白色和藍色的色彩對比法,
使空間彰顯出低調張弛的典雅;讓休憩氛圍愈加靜謐安寧。
02
藝術之美


生活持續向內,手工加工的木地板,舒適的沙發椅,居住者對于精致生活的態度在此雜糅。
閑暇之余,待客會友,一本好書或一曲悠揚,生活的美好沿著這一向內的空間縱深,裊裊而出。

黃銅材質,質感非凡的圓管扶手,彰顯了簡約風格的獨特魅力與靜謐的藝術感。
03
書香之韻



設計布局的構思來源于2012年紀傳體電影漢娜·阿倫特 Hannah Arendt中的書房場景。
一個完整的書房,并不僅僅是由書架和書桌構成的,要有能展開對比資料和文獻的平面、
配備疲勞時可以休息的小榻、可以走出去抽煙的院子、只有最志同道合才會邀請來的討論區,
像那些經典的書房一樣,壁爐和威士忌,一樣也不能少。



一個自如的書房空間,從而可以覓得心靈與精神的張弛。
以木包裹的定制書柜,紋理豐富、色彩柔和,加以極簡的表達,溫和中帶有靜謐,
內嵌書桌設計,帶來個性、多元的空間體驗,也彰顯出溫雅從容的書香人生。
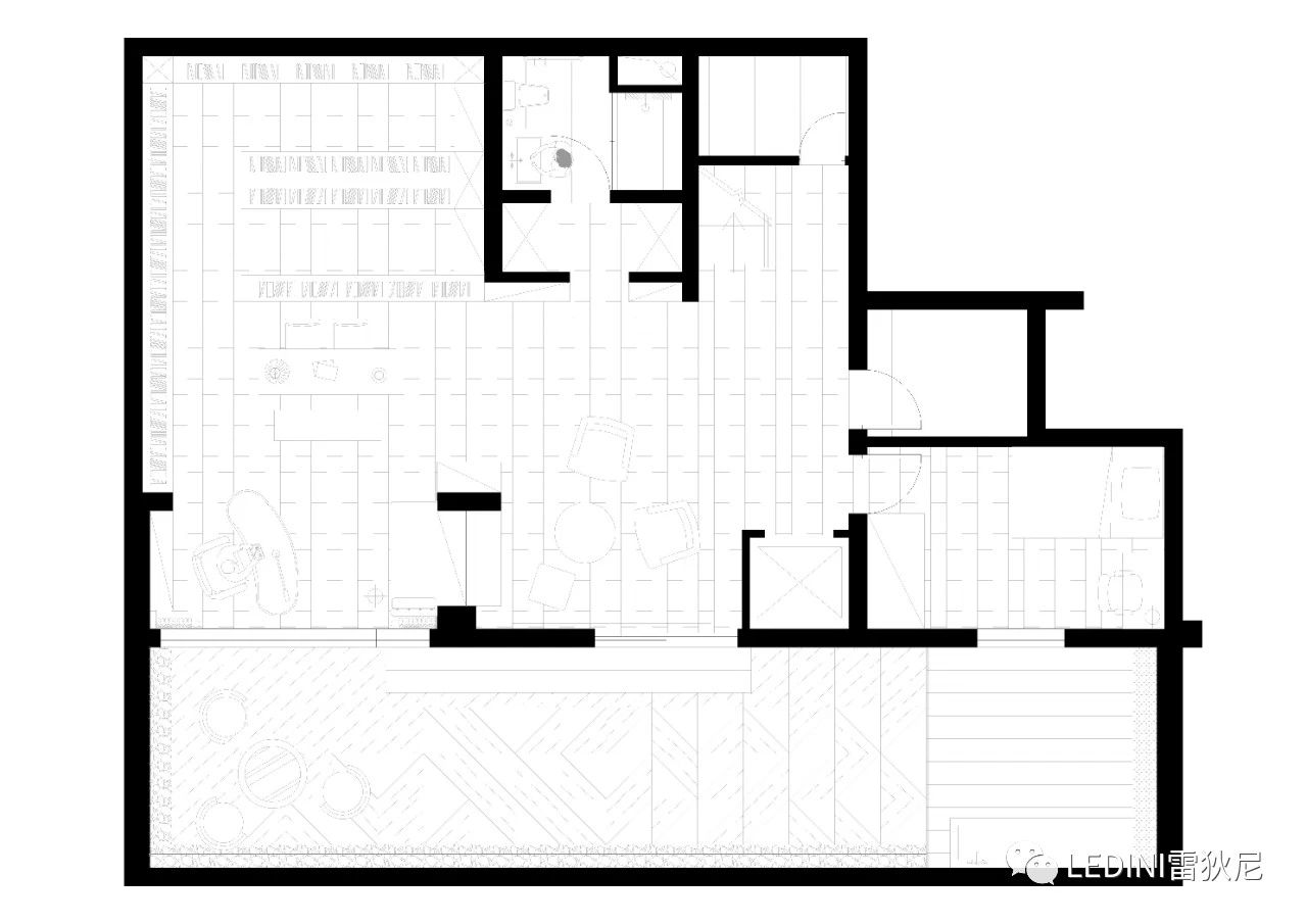
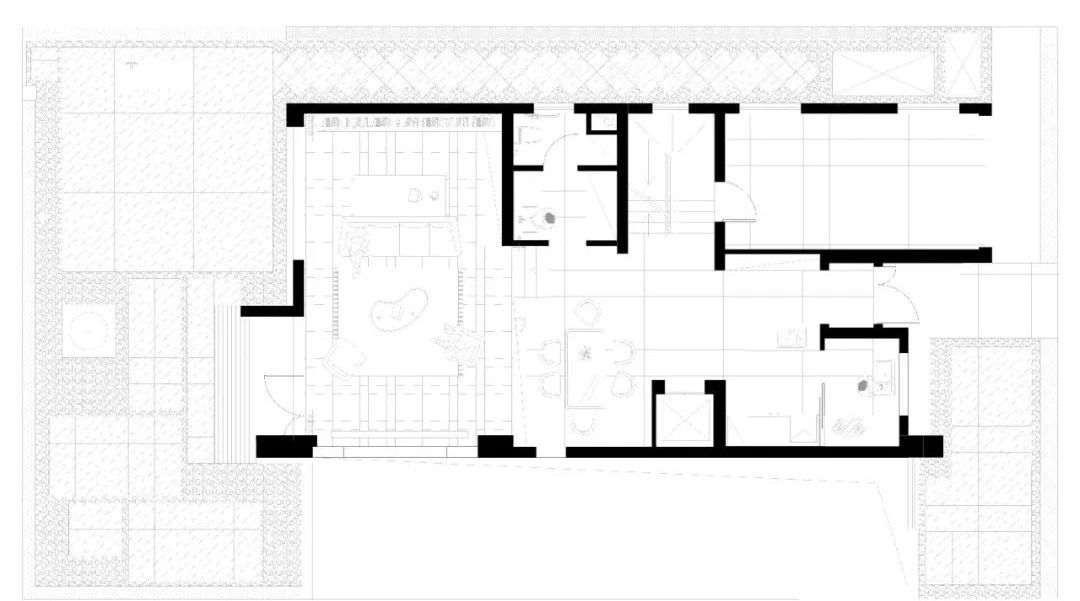
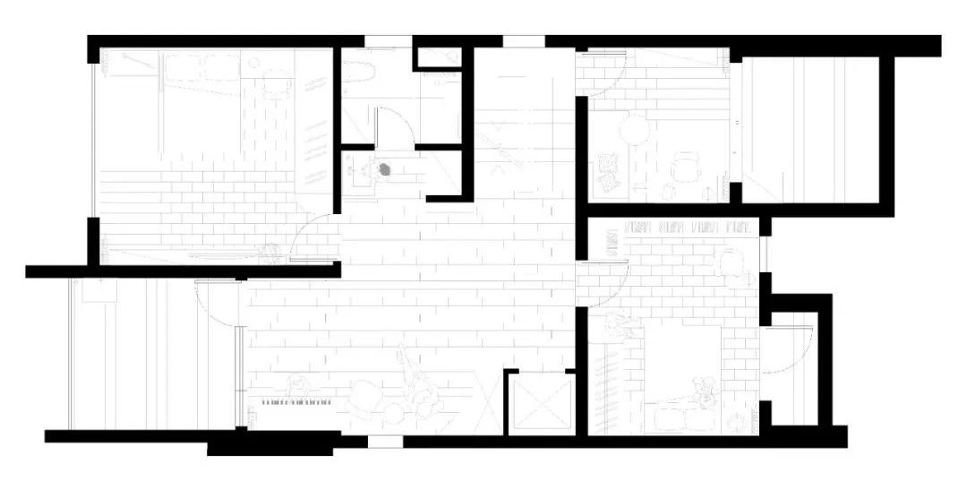
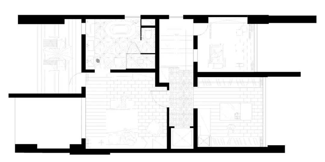
【本案平面】

地下一層平面

一層平面

二層平面

三層平面
項目地址:中國 · 上海
建筑面積:620㎡
木 作:LEDINI雷狄尼
主要材料:意大利CLEAF進口板|鋸齒黑胡桃直紋|意大利Sirca水性油漆|意大利進口巖板
設計深化:西安蒂邁豪斯建材家居有限公司
展廳地址:西安市未央區北二環大明宮鉆石店北門一層

